●明るい角地!
●和室が多く「椋(むく)の木」を使った住宅
●リフォーム予定!
・完成日:2026年2月
・項目:外壁塗装、木部塗装、バルコニー防水、トイレ、洗面化粧台、クロス、畳、ダウンライト
物件情報OUTLINE
| 所在地 | 堺市堺区緑ケ丘北町4丁1-4 | ||
| 交通 | 阪和線「上野芝」駅 徒歩14分 | 築年月 | 2007年6月築 |
| 面積 | 97.05 ㎡ | 測定方式 | 公簿 |
| バルコニー面積 | ― ㎡ | 向き | 南東、北東 向き |
| 建物階数 | ― | 区画番号 | ― |
| 総戸数 | 1 戸 | 建物構造 | 木造2階建 |
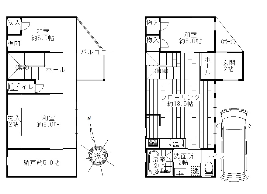
| 間取内容 | 3SLDK | 駐車場 | あり |
| 取引態様 | 仲介 | 引渡/入居 | 相談(改装中) |
| 現状 | 空家 | 地目 | 宅地 |
| 用途地域 | 第2種中高層地域 | 都市計画 | 市街化区域 |
| 容積率 | 200 % | 建蔽率 | 60 % |
| 接道状況 | 2方(角地) | 土地権利 | 所有権 |
| 接道種別 | 公道 | 設備条件 | 上下水道、都市ガス |
| 周辺環境 | 大仙小学校、旭中学校 | 物件番号 | ― |
| 販売価格 | 2899 万円 | ||