マドレコート東上野芝町(1戸)

この物件の特徴

●省エネの「長期優良認定住宅」「ZEH水準認定住宅」!

●安心の耐震等級3取得(最高等級)!

●ガスでパワフル乾燥の「幹太くん」標準装備!

●寒さ軽減する樹脂サッシ標準仕様!

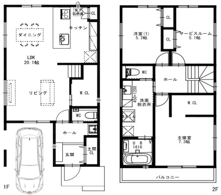
●広い洗面室!ゆとりLDK20.1帖、納戸収納付きの3SLDK!

物件情報OUTLINE

所在地 堺市北区東上野芝町2丁
交通 JR阪和線「上野芝」駅 徒歩9分 築年月 新築
面積 106.38 ㎡ 測定方式 実測
バルコニー面積 ― ㎡ 向き 南東 向き
建物階数 区画番号
総戸数 1 戸 建物構造 木造2階建
間取内容 3SLDK 駐車場 あり
取引態様 仲介 引渡/入居 相談
現状 空家 地目 宅地
用途地域 第1種中高層地域 都市計画 市街化区域
容積率 200 % 建蔽率 60 %
接道状況 1方 土地権利 所有権
接道種別 公道 設備条件 上下水道、都市ガス
周辺環境 西百舌鳥小学校、陵南中学校 物件番号
販売価格 3980 万円

物件お問い合せ

このページの先頭へ