ライフシティー
LIFECITY
>
新着情報
>
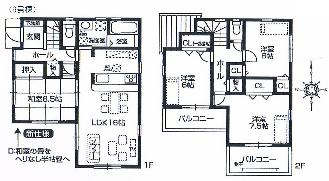
間取りUPしました!(ファーストタウン新金岡)
間取りUPしました!(ファーストタウン新金岡)
2017.02.20
間取りUPしました!(ファーストタウン新金岡)
全10区画ございますので、全号棟間取りや物件の有無はお気軽にお問合わせ下さいませ!